今回LAKIA不動産四ツ橋堀江店がご紹介する物件は、大阪市西区江之子島に誕生した新築分譲賃貸マンションでございます。
本物件は複数の間取りタイプをご用意しておりますが、今回ご紹介させていただくのは特にお問い合わせの多い人気の1LDKタイプです。
2025年3月に完成したばかりの新築マンションとなっており、大阪市内でも住み心地の良さで人気の高い西区エリアに位置しています。最寄りの「阿波座」駅までは徒歩3分という利便性の高い立地で、通勤・通学はもちろん、梅田や難波方面へもアクセスしやすい点が魅力です。
1LDKの間取りは単身の方はもちろん、同棲や新婚の方にもお勧めできるゆとりのある居住空間となっております。
今回ご紹介する「S-RESIDENCE阿波座bouncy」。
新築ならではの綺麗な設備と洗練されたデザインを兼ね備えた注目の物件となっております。
気になる方はぜひ詳細をご確認ください。
「S-RESIDENCE阿波座bouncy」について
「S-RESIDENCE阿波座bouncy」の物件概要
| 所在地 | 大阪府大阪市西区江之子島1丁目 |
|---|---|
| 最寄駅 | 大阪メトロ千日前線 阿波座駅 徒歩3分 |
| 築年数 | 2025年3月 |
| 間取り | 1LDK |
| 構造 | 鉄筋コンクリート(RC) |
「S-RESIDENCE阿波座bouncy」の室内詳細


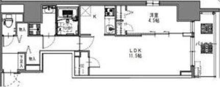
間取り
エレベーター / エレベーター2基 / 宅配ボックス / 敷地内ごみ置き場 / バルコニー / フローリング / 全居室フローリング / 人感照明センサー / BS・CS / ネット使用料不要 / TVインターホン / 南向き / 駐輪場 / システムキッチン / バストイレ別 / 脱衣所 / 浴室乾燥機 / 温水洗浄便座 / 洗面所独立 / 洗面台 / 洗面化粧台 / 洗髪洗面化粧台 / シャワー付洗面台 / シャワールーム / 24時間換気システム / クロゼット / シューズボックス / オートロック / ダブルロックキー / ディンプルキー / 防犯カメラ / モニター付きオートロック / ゴミ出し24時間OK


11.5帖のリビングは、ゆったりとした広さがあってとても使い勝手のいい空間です。大きな窓から入る自然光のおかげで、部屋全体がパッと明るくなり、どの時間帯でも心地よく過ごせます。
白をベースにしたシンプルな内装なので、どんな家具でも合わせやすく、ソファやテレビを置いても圧迫感が出にくいのが嬉しいポイント。「ここにダイニングテーブルを置こうかな」「ソファはちょっと大きめを選んでも良さそうだな」
と、レイアウトの自由度も高く、自分好みの空間づくりが楽しめます。
友達を呼んでくつろぐのも良し、2人暮らしでもゆとりを感じられる広さ。
毎日の生活をのびのびと過ごせる、居心地のいいリビングに仕上がっています。
キッチン

キッチンは使い勝手とデザイン性を両立した仕様となっており、日常の調理をスムーズに行える設備が整っています。2口コンロのシステムキッチンを採用しており、複数の調理を同時に進められるため、効率的に料理ができる点が魅力です。
ワークトップは広めに確保されており、食材の下ごしらえから盛り付けまで快適に行えます。また、シンクもゆとりのあるサイズで、水切りや洗い物がしやすい設計となっています。
収納面では、上下に豊富なキャビネットを備えているため、調理器具や食器類を無理なく整理できます。キッチン全体のデザインは落ち着いたトーンでまとめられており、白を基調とした室内と調和し、清潔感のある印象を演出しています。
日々の自炊をしっかり支えてくれる実用性と、美しく整った空間を兼ね備えたキッチンとなっています。
バスルーム

バスルームは、日々の疲れをしっかりと癒せる上質な空間に仕上げられています。浴室には浴室乾燥機が標準搭載されており、雨の日の洗濯や衣類の乾燥にも対応できる使い勝手の良い設備です。湿気がこもりにくいため、カビの発生を抑える効果も期待できます。浴槽はゆったりとしたサイズ感で、肩までしっかり浸かれるため、身支度だけでなくリラックスの時間としても満足度の高い仕様となっています。壁面には落ち着きのある色調が採用され、日常の入浴をより快適で心地よいものにしてくれます。
また、追い焚き機能を備えているため、忙しい生活の中でも好きなタイミングで温かいお湯に浸かることができ、パートナーとの生活にも便利です。浴室内の収納棚も必要なケア用品をすっきりまとめられる配置で、機能性と見た目の美しさが両立されています。
洗面所

洗面化粧台は、日々の身支度を快適に行えるよう、機能性と清潔感を重視した仕様となっています。広めのミラーを備えた独立洗面台を採用しており、朝の準備やスキンケアをゆとりを持って行える空間が確保されています。
カウンタースペースには必要なアイテムを置いても圧迫感が出にくく、作業のしやすさが魅力です。また、収納力のあるキャビネットが設けられており、タオルや日用品、化粧品などをすっきりと整理できるため、生活感を抑えた美しい状態を保ちやすくなっています。
清潔感のある白を基調としたデザインが室内と調和し、毎日使う場所としての使いやすさと落ち着いた雰囲気を兼ね備えた洗面空間となっています。
洋室

洋室は、居住者のライフスタイルに合わせて柔軟に使える、落ち着きのある空間です。フローリングは明るめの木目調で、室内に温かみと清潔感を演出。家具を置いても圧迫感が出にくく、ベッドやデスク、収納家具など自由にレイアウトできます。クローゼットがしっかり備え付けられており、衣類や小物を整理しやすく、居室をすっきり保てる設計です。窓から差し込む自然光が室内を明るく照らし、風通しも良いため、快適に過ごせる環境が整っています。
単身者のプライベートルームとしてはもちろん、カップルや同棲でも十分な広さとゆとりを感じられる洋室は、日常のくつろぎや集中した時間を過ごすのに最適な空間です。
収納スペース

居住空間をすっきりと保てる充実した収納スペースを備えています。洋室には大容量のクローゼットが設置されており、衣類や小物を整理しやすく、生活感を抑えた美しい空間を維持できます。
キッチンにも上下に十分な収納が用意されており、調理器具や食器、調味料まで効率よく収納可能。バスルームや洗面所にも収納棚があり、タオルや洗剤などの日用品をまとめて置けるため、生活用品が散らかりにくくなっています。
各収納スペースは、使い勝手だけでなく見た目の美しさにも配慮された設計で、部屋全体の統一感を損なわずに整理整頓が可能です。収納力の高さが、快適で暮らしやすい住空間の実現をサポートしています。
「S-RESIDENCE阿波座bouncy」のおすすめポイント
お部屋探しでお困りの方へ
LAKIA不動産四ツ橋堀江店では、大阪市西区・中央区・浪速区を中心に大阪市内の最新の賃貸情報(マンション・アパート・戸建)をお届けしています。
任せてよかったと納得、安心していただけるお部屋探しのサポートを提供させていただきます。
ご希望のお部屋がホームページに掲載されていない場合でもご安心ください。家主様のご都合でインターネットに掲載できないご希望エリアの物件をご紹介させていただきます。
「賃貸・売買で契約の事がわからない」「遠方で来店ができない」「初期費用を抑えたい」等のお悩みはお気軽にご相談ください。








